Home
Philosophy
Services
Portfolio
Contact Us
Hom
e
Service
s
Portfoli
o
Contact Us
Home
Method
Services
Portfolio
Contact Us
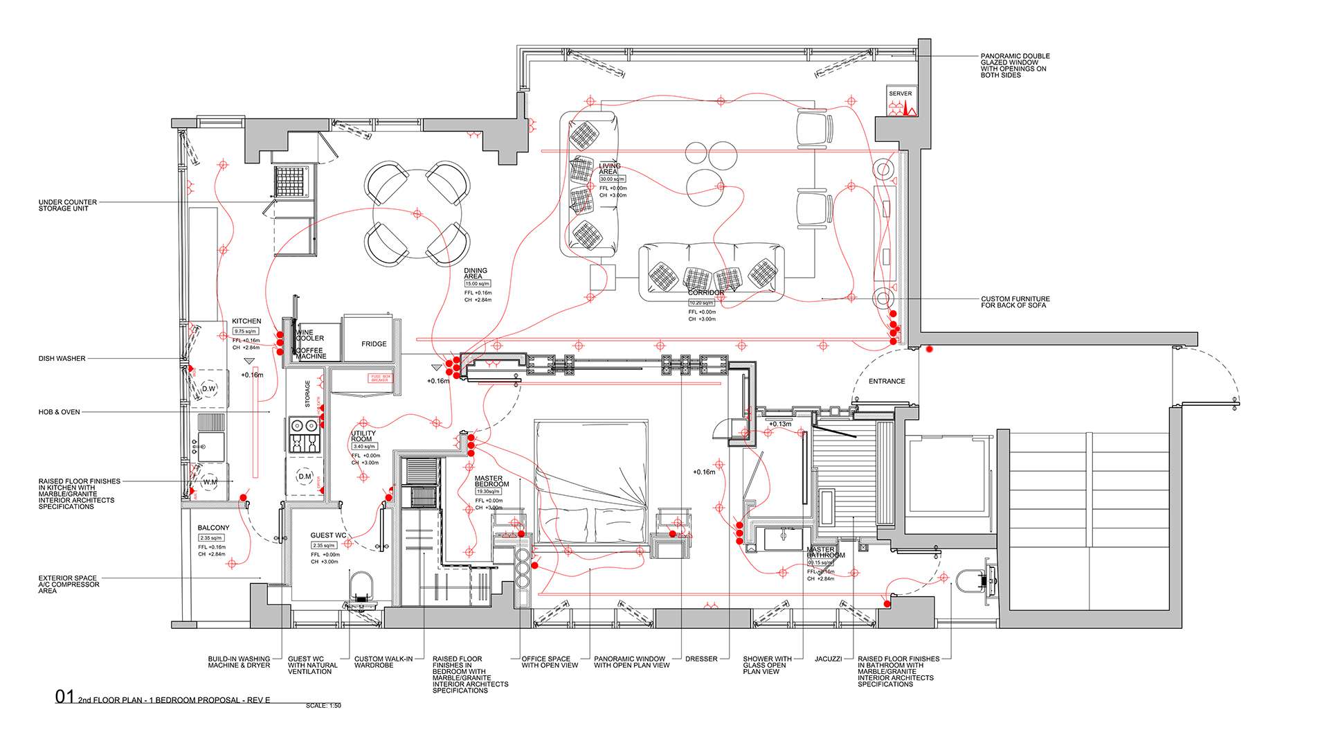
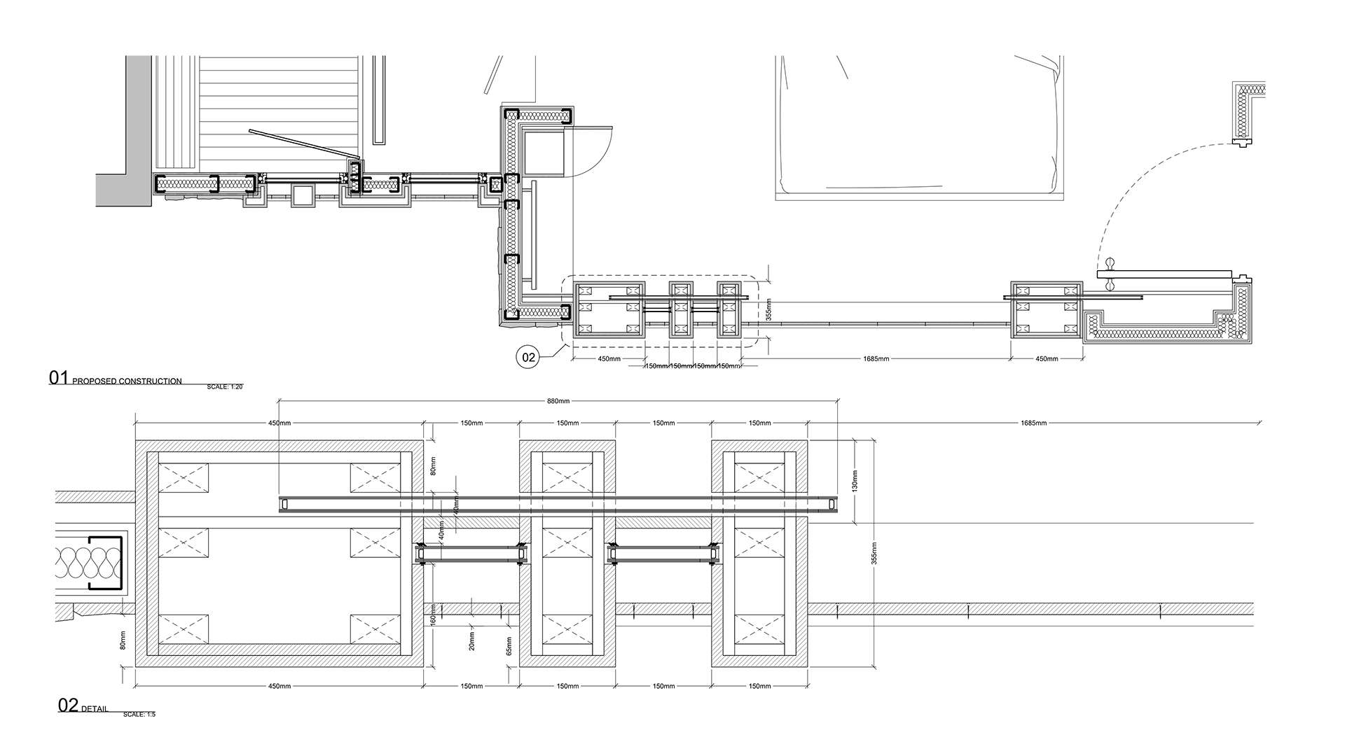
Apartment, Design & Build