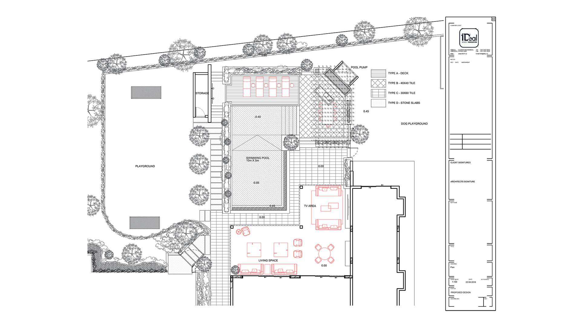
Exterior Garden and Pool, Design & Build Process

Intersecting the forms using earthy textured materials is giving this subtle sense of place. IDCY rejuvenated the space with an understated luxury giving justice to island outdoor living. Enjoy your swim in the infinity pool as the heat is rising!