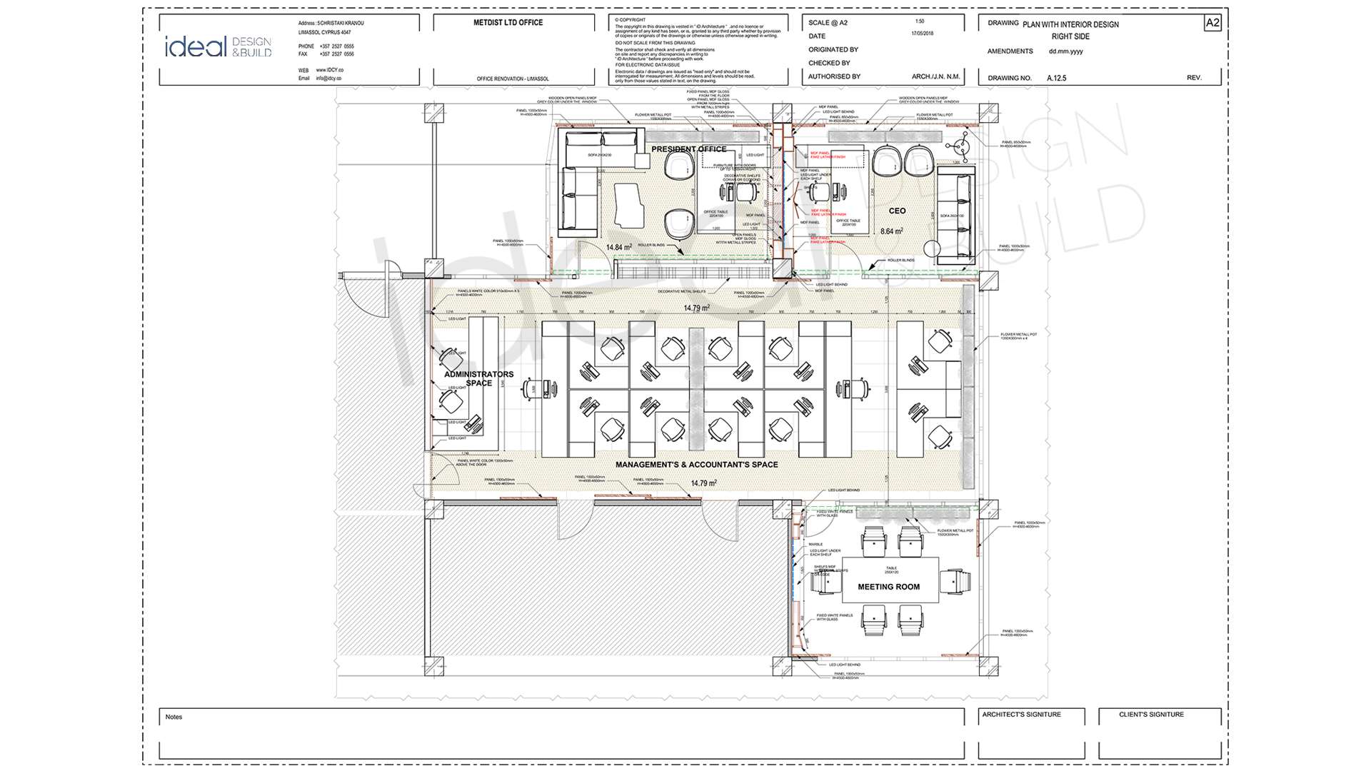
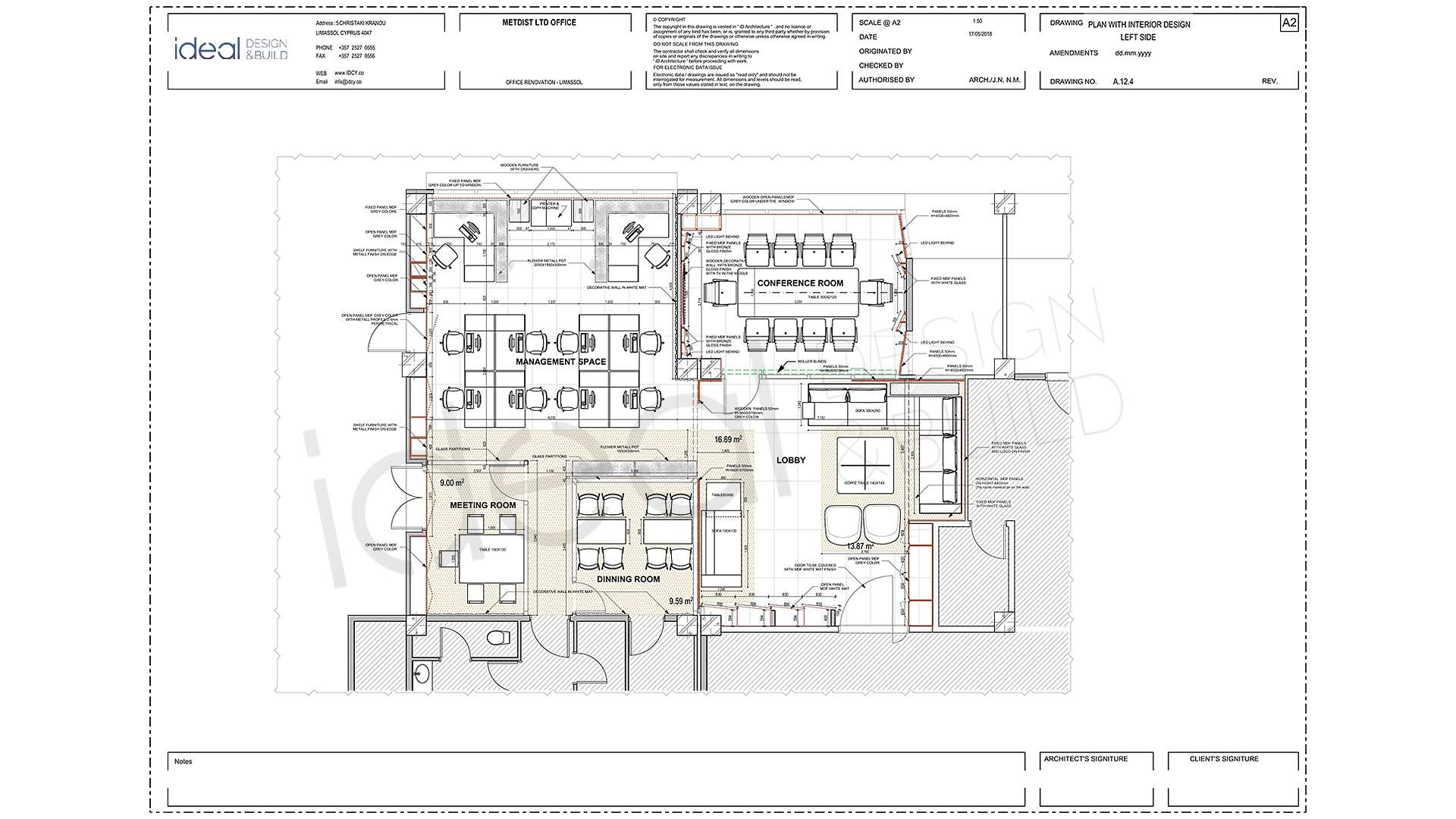
Corporate Office Design